Main Photo

31 Total Photos [Click to View All]

Main Photo
Main Photo
Listing Courtesy Of:

Listing Office: First Weber Inc - Menomonee Falls

Listing Office Phone: (262) 251-7200

N73w17723 Mineral Dr Menomonee Falls, WI 53051

$729,900
Active / MLS# 1958101 / Residential - Single Family / Menomonee Falls
3 Beds
2 Baths
1 Half Bath
2364 SqFt

Welcome home to The RILEY PLAN by Stepping Stone Homes, an award-winning home builder. Open floor plan features 3 bedrooms, 2.5 baths and a 3 Car garage. The kitchen comes with quartz countertops, soft close cabinetry and LG appliance package. LVP flooring in kitchen, dinette and great room. We equip our homes with Smart Technology such as a Ring Doorbell. You will find quality craftsmanship throughout such as 2x6 construction exterior walls, undercabinet kitchen lighting, solid core doors, 9' first floor ceilings and active radon system. Basement includes an egress window and is rough plumbed for bath. We offer a total Kohler/Sterling home experience. T

Read More » Read Less »

Baird & Warner New Client Care Team Agent Cell: 312.847.5702 Email

Request Tour

Mortgage Calculator

%
years/fixed
yearly
yearly (est.)
yearly
(Payments are an estimate and may vary by lender)

Estimated Payment

$ 2,434.89 per month $1,622.00 Principal & Interest $0.00 Property Tax (data not provided by mls) $212.89 Homeowner's Insurance $600 HOA Fee
Get your competitive financing options.

Property Details

Property Type: Residential - Single Family
Basement: 8+ Ceiling, Full, Full Size Windows, Poured Concrete, Radon Mitigation, Stubbed for Bathroom, Sump Pump
Fuel Type: Natural Gas
Garage: 3 car attached
Garage: Electric Door Opener
Home Style: Contemporary
Lot Size: 0.34 Acres
Stories: 2.0
Taxes: $0
Year Built: 2025

Feature Descriptions

Accessibility: Bedroom on Main Level, Full Bath on Main Level, Laundry on Main Level, Level Drive, Open Floor Plan, Stall Shower
Appliances: Dishwasher, Disposal, Microwave, Oven, Range, Refrigerator
Bath: At least one Bathtub, Ceramic Tile, MBR Bath Walk-in Shower, Shower Over Tub, Shower Stall
Data Source: Metro MLS
Driveway: Paved
Exterior: Fiber Cement, Low Maintenance Trim, Stone
Flood Plain: No
Green Features: Energy Assessment Available, Energy Star Appliance(s) or Mechanical(s), Low E Windows
Heating/Cooling: Central Air, Forced Air
HOA Fee: 600
Interior: Cable TV Available, Gas Fireplace, High Speed Internet, Kitchen Island, Pantry, Simulated Wood Floors, Vaulted Ceiling(s), Walk-In Closet(s)
Rooms Total: 7
SQFT Above Grade: 2364.00
Water/Sewer: Municipal Sewer, Municipal Water
Zoning: Residential

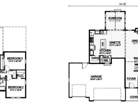
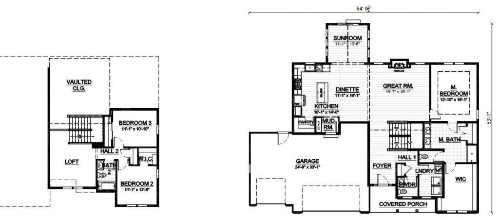
Room Information

Living/Great Room: 17.00 X 16.00 Level - M
Kitchen: 16.00 X 14.00 Level - M
Primary Bedroom: 16.00 X 12.00 Level - M
Dining Room: 16.00 X 11.00 Level - M
Bedroom 2: 12.00 X 11.00 Level - U
Bedroom 3: 11.00 X 11.00 Level - U
Laundry: 8.00 X 8.00 Level - M
Sun/Four Season Room: 11.00 X 11.00 Level - M
Loft: 11.00 X 10.00 Level - U

Schools

High School: Hamilton
Middle School: Templeton
School District: Hamilton

Disclaimer: The accuracy of all information regardless of source, including but not limited to square footage and lot size, is deemed reliable but not guaranteed nor warranted and should be personally verified through personal inspection by and/or with the appropriate professionals.

Location

See details and scored characteristics about this location.

Login to my Baird & Warner account

Pixel