Main Photo

68 Total Photos [Click to View All]

Main Photo
Main Photo

5644 S Prairie Avenue Chicago, IL 60637

$1,022,500
Price Change / MLS# 12532533 / Multi Unit - Multiple / Chicago
12 Beds
8 Baths

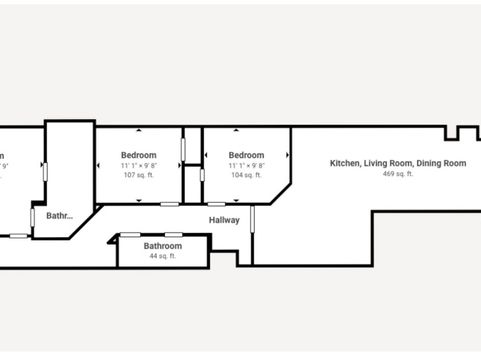
4-unit, 2007 construction, perfect OWNER-OCCUPANT investment opportunity in appreciating east Washington Park! Unit 2 has been rehabbed to feature modern improvements to be compared to other new construction in the area. All four units are 3-bed / 2-bath and have in-unit laundry hook-ups, hardwood and tile throughout, modern appliances, gas-forced-heat / central air, in-unit hot water tanks, and individual utilities. The units are larger than than most of the new construction in the area, ranging in size between 1,200 and 1,400 SF. The property has had extensive improvements in the last year to the interior and exterior. Other notable features: steel porches with individual outdoor spaces, sump pump and grinder pump, breaker panels in-unit, five exterior parking spaces with automatic gate, common coin laundry, new carpet and paint in common hallway, granite countertops with islands, separate living and dining areas, and updated lighting and bathroom fixtures. All kitchens have refrigerators, dishwashers, gas stoves, built-in microwaves, and condo-quality cabinetry. This is a fantastic opportunity for an owner-occupant to occupy one unit and benefit from the income from the other three units.

Read More » Read Less »

Baird & Warner New Client Care Team Agent Cell: 312.847.5702 Email

Request Tour

Mortgage Calculator

%
years/fixed
yearly
yearly (est.)
(Payments are an estimate and may vary by lender)

Estimated Payment

$ 3,998.78 per month $2,272.22 Principal & Interest $1,428.33 Property Tax $298.23 Homeowner's Insurance
Get your competitive financing options.

Property Details

Property Type: Multi Unit - Multiple
Basement: None
Heating: Natural Gas
Lot Size: 4,050
Roof Type: Asphalt
Taxes: $17,140
Year Built: 2007

Feature Descriptions

Exterior: Block
Lot Dimensions: 4050
Parcel#: 20151100330000
Parking: Assigned, Off Alley, Off Street, Yes
Sewer: Public Sewer
Total Rooms: 24
Township: Hyde Park
Water: Public

Schools

School District: District 299

Disclaimer: The accuracy of all information regardless of source, including but not limited to square footage and lot size, is deemed reliable but not guaranteed nor warranted and should be personally verified through personal inspection by and/or with the appropriate professionals.

Location

See details and scored characteristics about this location.

Listing Office: 33 Realty

Listing Office Phone: 773-327-4975



Listing data and photos distributed by MLSGRID
Member Participants (and their affiliated licensees, if applicable) shall indicate on their websites that IDX information is provided exclusively for consumers’ personal non-commercial use, that it may not be used for any purpose other than to identify prospective properties consumers may be interested in purchasing, that the data is deemed reliable but is not guaranteed by MLS GRID, and that the use of the MLS GRID Data may be subject to an end user license agreement prescribed by the Member Participant’s applicable MLS if any and as amended from time to time. MLS GRID may, at its discretion, require use of other disclaimers as necessary to protect Member Participant, and/or their MLS from liability.
Based on information submitted to the MLS GRID. All data is obtained from various sources and may not have been verified by broker or MLS GRID. Supplied Open House Information is subject to change without notice. All information should be independently reviewed and verified for accuracy. Properties may or may not be listed by the office/agent presenting the information.


Login to my Baird & Warner account

Pixel