Main Photo

7 Total Photos [Click to View All]

Main Photo
Main Photo

400 S Cumberland Avenue Park Ridge, IL 60068

$2,449,000
Active / MLS# 12368806 / Residential - Single Family / Park Ridge
6 Beds
5 Baths
1 Half Bath
6400 SqFt

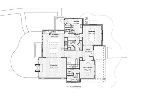
Bespoke Luxury on a generous 75x177 Lot. Experience the pinnacle of Park Ridge living with this stunning new construction, situated on an oversized lot-a true rarity in the heart of Uptown. Imagine a lifestyle where every urban convenience is a leisurely stroll away: start your Saturdays at the vibrant Farmer's Market, enjoy dinner at world-class restaurants, or catch a film at the historic Pickwick Theatre. This natural light filled home features a 6-bedroom, 5.1-bath floor plan designed for modern flexibility and 6,400 square feet of living space. The second level boasts four bedrooms with volume ceilings, while the main floor offers a private in-law ensuite or executive home office. At the heart of the home, a professional-grade chef's kitchen features custom cabinetry, dual pantries, and high-performance appliances tailored for serious culinary endeavors. The lower level is a dedicated wellness and entertainment sanctuary, complete with a recreation room, wet bar, exercise room, guest suite, and a spa-inspired steam shower. Outside, your private oasis awaits with a cozy fireplace and a yard large enough for a in-ground pool or sport court, and a three-car garage with second level storage. Targeted for June 2026 completion. Agent has an ownership interest in property.

Read More » Read Less »

Baird & Warner New Client Care Team Agent Cell: 312.847.5702 Email

Request Tour

Mortgage Calculator

%
years/fixed
yearly
yearly (est.)
(Payments are an estimate and may vary by lender)

Estimated Payment

$ 7,446.43 per month $5,442.22 Principal & Interest $1,289.92 Property Tax $714.29 Homeowner's Insurance
Get your competitive financing options.

Property Details

Property Type: Residential - Single Family
Basement: Finished, Full
Basement: Yes
Cooling: Central Air
Fireplaces: 1
Garage: 3
Heating: Natural Gas
Lot Size: 0.30 Acres
Taxes: $15,479
Year Built: 2026

Feature Descriptions

Additional rooms: Bedroom 5,Bedroom 6,Mud Room, Exercise Room
Association Includes: None
Dining Room: Separate
Exterior: Limestone, Fiber Cement
Fireplace: Wood Burning, Gas Starter
Fireplace Location(s): Family Room, Exterior
Lot Dimensions: 75X177
Parcel#: 09351200190000
Parking: Yes, Garage Owned, Detached, Garage
Sewer: Public Sewer
Total Rooms: 11
Township: Maine
Water: Lake Michigan

Room Information

Bedroom 5: 11X14
Bedroom 6: 15X16
Mud Room: 12X15
Exercise Room: 12X13
Bedroom 2: 12X15
Bedroom 3: 12X17
Bedroom 4: 12X15
Dining Room: 15X16
Family Room: 23X35
Kitchen: 22X18
Laundry: 8X15
Living Room: 17X23
Primary Bedroom: 14X16

Schools

High School: Maine South High School
Middle School: Lincoln Middle School
Elementary School: George Washington Elementary Sch
School District: District 207

Disclaimer: The accuracy of all information regardless of source, including but not limited to square footage and lot size, is deemed reliable but not guaranteed nor warranted and should be personally verified through personal inspection by and/or with the appropriate professionals.

Location

See details and scored characteristics about this location.

Listing Office: Keller Williams ONEChicago

Listing Office Phone: 312-216-2422



Listing data and photos distributed by MLSGRID
Member Participants (and their affiliated licensees, if applicable) shall indicate on their websites that IDX information is provided exclusively for consumers’ personal non-commercial use, that it may not be used for any purpose other than to identify prospective properties consumers may be interested in purchasing, that the data is deemed reliable but is not guaranteed by MLS GRID, and that the use of the MLS GRID Data may be subject to an end user license agreement prescribed by the Member Participant’s applicable MLS if any and as amended from time to time. MLS GRID may, at its discretion, require use of other disclaimers as necessary to protect Member Participant, and/or their MLS from liability.
Based on information submitted to the MLS GRID. All data is obtained from various sources and may not have been verified by broker or MLS GRID. Supplied Open House Information is subject to change without notice. All information should be independently reviewed and verified for accuracy. Properties may or may not be listed by the office/agent presenting the information.


Login to my Baird & Warner account

Pixel