Main Photo

2 Total Photos [Click to View All]

Main Photo
Main Photo

3820 N Damen Avenue , Unit 1 Chicago, IL 60618

$1,495,000
New / MLS# 12608160 / Residential - Condominium / Chicago
4 Beds
3 Baths
1 Half Bath
2900 SqFt

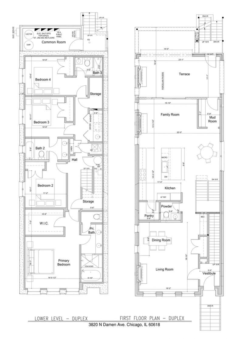
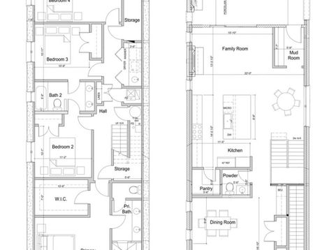
Luxury New Construction condo on an oversize 30' wide lot in the desirable neighborhood of North Center and Bell school district set for delivery in June 2026. Brand new 4-unit development built by long standing home builder Strand Partners LLC. Masonry and limestone building with extra-wide luxury condos along with a masonry 3-car garage with Coach House above. This high-end home with a timeless facade boasts premier finishes and quality throughout consisting of 4 bedrooms with 3.5 baths a private terrace with gas fireplace, porcelain decking, and abundant natural light. Top-of-the-line finishes throughout including custom chefs kitchen featuring breakfast nook, eat-in island, custom cabinetry, Thermador professional appliances, natural stone countertops, white oak hardwood floors, walk-in pantry, and tiled backsplash. Upscale trim includes 8' double panel solid doors with Emtek hardware, 7 base, 3.25 casing, and Kohler kitchen and bath fixtures. Bright and spacious family room off the kitchen with gas fireplace and stone mantle opens to the private outdoor space. A mud room off the breakfast nook is spacious with plenty of storage. Designer baths with detailed tile work, primary suite wet room with steam shower and soaking tub, double vanity, and heated floor. Walk-in laundry with full size W/D, separate mechanicals, storage, and radiant heat throughout lower level. Spacious bedrooms with generous built-out closet space in all. 10' ceilings on both levels with abundant natural light. Extra insulation and sound proofing between units, bathrooms and laundry. Weathershield casement and awning windows. With its prime location, you'll enjoy the convenience of being just steps away from all the vibrant shops and award-winning restaurants that Roscoe Village and North Center have to offer including easy access to public transportation, along with the highly regarded Bell school district. If you are looking for extra living quarters there is a spacious one-bedroom coach house listed separately, which would make a great nanny, in-law, or office. Shown by appointment.

Read More » Read Less »

Baird & Warner New Client Care Team Agent Cell: 312.847.5702 Email

Request Tour

Mortgage Calculator

%
years/fixed
yearly
yearly (est.)
yearly
(Payments are an estimate and may vary by lender)

Estimated Payment

$ 4,177.26 per month $3,322.22 Principal & Interest $0.00 Property Tax (data not provided by mls) $436.04 Homeowner's Insurance $419 HOA Fee
Get your competitive financing options.

Property Details

Property Type: Residential - Condominium
Basement: Finished, Full
Basement: Yes
Cooling: Central Air
Fireplaces: 1
Garage: 1
Heating: Natural Gas, Forced Air, Radiant, Sep Heating Systems
Lot Size: Common
Stories: 3.0
Year Built: 2026

Amenities

Dry Bar
Storage

Feature Descriptions

Additional rooms: Pantry, Breakfast Room, Mud Room, Walk In Closet, Storage, Terrace
Appliances: Range, Microwave, Dishwasher, High End Refrigerator, Washer, Dryer, Disposal, Range Hood
Association Includes: Water, Insurance, Exterior Maintenance
Bath Features: Separate Shower, Steam Shower, Double Sink, Soaking Tub
Exterior: Brick, Stone
Fireplace: Gas Log
Fireplace Location(s): Family Room
HOA Fee: 419/ Monthly
Laundry: Washer Hookup, In Unit
Lot Dimensions: Common
Parcel#: 14191150000000
Parking: Yes, Garage Owned, Detached, Garage
Pet Allowed: Cats OK, Dogs OK
Sewer: Public Sewer
Total Rooms: 9
Township: Lake View
Water: Lake Michigan

Room Information

Pantry: 5X6
Breakfast Room: 10X14
Mud Room: 6X8
Walk In Closet: 7X11
Storage: 4X9
Terrace: 19X23
Bedroom 2: 10X11
Bedroom 3: 11X11
Bedroom 4: 10X11
Dining Room: 9X16
Family Room: 14X16
Kitchen: 13X14
Laundry: 4X9
Living Room: 10X16
Primary Bedroom: 14X15

Schools

Elementary School: Alexander Graham Elementary Scho
School District: District 299

Disclaimer: The accuracy of all information regardless of source, including but not limited to square footage and lot size, is deemed reliable but not guaranteed nor warranted and should be personally verified through personal inspection by and/or with the appropriate professionals.

Location

See details and scored characteristics about this location.

Listing Office: Jameson Sotheby's Intl Realty

Listing Office Phone: 312-751-0300



Listing data and photos distributed by MLSGRID
Member Participants (and their affiliated licensees, if applicable) shall indicate on their websites that IDX information is provided exclusively for consumers’ personal non-commercial use, that it may not be used for any purpose other than to identify prospective properties consumers may be interested in purchasing, that the data is deemed reliable but is not guaranteed by MLS GRID, and that the use of the MLS GRID Data may be subject to an end user license agreement prescribed by the Member Participant’s applicable MLS if any and as amended from time to time. MLS GRID may, at its discretion, require use of other disclaimers as necessary to protect Member Participant, and/or their MLS from liability.
Based on information submitted to the MLS GRID. All data is obtained from various sources and may not have been verified by broker or MLS GRID. Supplied Open House Information is subject to change without notice. All information should be independently reviewed and verified for accuracy. Properties may or may not be listed by the office/agent presenting the information.


Login to my Baird & Warner account

Pixel