Main Photo

84 Total Photos [Click to View All]

Main Photo
Main Photo

202 E Park Street Sailor Springs, IL 62879

$29,500
New / MLS# 12619953 / Residential - Single Family / Sailor Springs
4 Beds
1 Bath
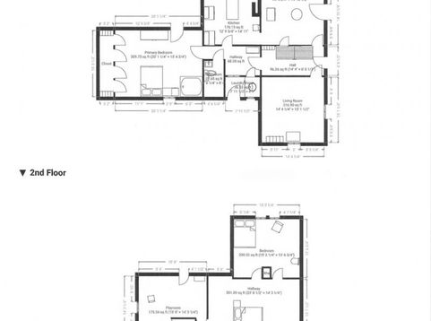
1889 SqFt

Affordable Opportunity with Character and Space! This $29,500, 4-bedroom home in historic Sailor Springs, Illinois is ready for your vision and hard work. Conveniently located just 7-10 minutes from Dollar General, Elementry, Jr High and High School, medical clinic, and Casey's, providing gas, pizza and refreshements this property offers very small-town living with nearby amenities. Believed to date back to the early 1900s (with records showing 1909), this 1.5-story farmhouse is full of charm and unique features. From the turn-of-the-century crank doorbell to the original pump sink in the kitchen-paired with a modern sink-this home blends history with function. The property is on EJ Water (no well), with a meter hookup available. Electrical service is on breakers, and wiring is believed to have been updated. Heating includes a mix of electric baseboard, a Warm Morning stove, and ventless wall heat, a gas fireplace all operating on LP gas with the owned tank included. A 2001 addition on the north side expanded the home to include a primary bedroom with a garden tub, a wall of closets for ample storage, and updated bathroom and laundry areas. Most windows have been replaced with vinyl double-hung units, helping reduce future expenses. Situated on large corner lots totaling nearly 3/4 of an acre, there's plenty of room to enjoy outdoor space. Keep in mind, utilities have not been active recently-buyers should plan on updating water lines and possibly some drains, and the condition of the water heater is unknown. These factors are reflected in the price. This home is being sold as-is and offers a great opportunity for investors or buyers looking to restore a charming older property. Bring your ideas and take a look-opportunities like this don't last long!

Read More » Read Less »

Baird & Warner New Client Care Team Agent Cell: 312.847.5702 Email

Request Tour

Mortgage Calculator

%
years/fixed
yearly
yearly (est.)
(Payments are an estimate and may vary by lender)

Estimated Payment

$ 115.33 per month $65.56 Principal & Interest $41.17 Property Tax $8.60 Homeowner's Insurance
Get your competitive financing options.

Property Details

Property Type: Residential - Single Family
Basement: Crawl Space
Cooling: Wall Unit(s)
Fireplaces: 1
Heating: Electric, Propane, Baseboard, Gravity, Indv Controls
Home Style: Farmhouse
Lot Size: 0.44 Acres
Roof Type: Asphalt
Taxes: $494
Year Built: 1909

Amenities

1st Floor Bedroom
Walk-In Closet(s)
Historic/Period Mlwk
Separate Dining Room
Replacement Windows

Feature Descriptions

Additional rooms: No additional rooms
Additional Structures: Other
Association Includes: None
Exterior: Vinyl Siding, Wood Siding, Plaster
Fireplace: Gas Log
Laundry: Main Level, Electric Dryer Hookup
Lot: Corner Lot
Lot Dimensions: 156x124
Parcel#: 08193130050000
Parking: Gravel, Yes
Sewer: Septic Tank
Total Rooms: 7
Township: Pixley
Water: Public

Room Information

Bedroom 2: 16X10
Bedroom 3: 16X13
Bedroom 4: 15X14
Dining Room: 15X14
Kitchen: 13X15
Laundry: 8X5
Living Room: 14X14
Primary Bedroom: 20X15

Schools

School District: District 10

Disclaimer: The accuracy of all information regardless of source, including but not limited to square footage and lot size, is deemed reliable but not guaranteed nor warranted and should be personally verified through personal inspection by and/or with the appropriate professionals.

Location

See details and scored characteristics about this location.

Listing Office: WILEY REALTY GROUP

Listing Office Phone: 618-508-4848



Listing data and photos distributed by MLSGRID
Member Participants (and their affiliated licensees, if applicable) shall indicate on their websites that IDX information is provided exclusively for consumers’ personal non-commercial use, that it may not be used for any purpose other than to identify prospective properties consumers may be interested in purchasing, that the data is deemed reliable but is not guaranteed by MLS GRID, and that the use of the MLS GRID Data may be subject to an end user license agreement prescribed by the Member Participant’s applicable MLS if any and as amended from time to time. MLS GRID may, at its discretion, require use of other disclaimers as necessary to protect Member Participant, and/or their MLS from liability.
Based on information submitted to the MLS GRID. All data is obtained from various sources and may not have been verified by broker or MLS GRID. Supplied Open House Information is subject to change without notice. All information should be independently reviewed and verified for accuracy. Properties may or may not be listed by the office/agent presenting the information.


Login to my Baird & Warner account

Pixel