Main Photo

66 Total Photos [Click to View All]

Main Photo
Main Photo

15684 Havana Circle Port Charlotte, FL 33981

$719,900
Active / MLS# D6145054 / Residential - Single Family / Port Charlotte
3 Beds
3 Baths
2514 SqFt

$55,000 Price Drop. Brand New Build. Over 2500 sq ft under air on the water with sailboat access to open water. No fixed bridges. Welcome to luxurious coastal living with true sailboat access to open water right from your backyard. This brand-new 3 bedroom, 3 bath home plus office/den showcases exceptional craftsmanship and thoughtful design throughout. Enjoy resort-style outdoor living with a saltwater heated pool, integrated hot tub, paver lanai, outdoor shower, and pool bath with inset-blind door, all overlooking your concrete seawall-ready for your future dock and boat lift.Inside, zero-corner sliders expand the living area to the pool, creating a seamless indoor-outdoor flow. The great room features cove-lit tray ceilings and a contemporary electric fireplace with built-in TV niche, while the chef's kitchen impresses with granite countertops, double oven/microwave combination, cooktop with hood, under- and over-cabinet lighting, extra island built for entertaining, and dedicated space for a wine cooler.The split bedroom layout offers privacy for all, including a 3rd bedroom with en-suite bath and double closets, ideal for an in-law suite or extended guests. The owner's retreat opens to the pool and includes a spa-inspired bath with walk-through shower featuring dual bench seats, dual shampoo niches, and separate dual vanities. Additional highlights include 8-foot doors, luxury plank flooring throughout, sliders to pool from bedroom two, laundry room with sink and storage area, and a spacious 3-car garage with new Epoxy flooring! Perfectly situated near Gulf beaches, waterfront dining, marinas, golf, and shopping, this extraordinary home promises the best of Florida luxury and boating convenience. Truly nothing was overlooked in this impeccable new build.

Read More » Read Less »

Baird & Warner New Client Care Team Agent Cell: 312.847.5702 Email

Request Tour

Mortgage Calculator

%
years/fixed
yearly
yearly (est.)
(Payments are an estimate and may vary by lender)

Estimated Payment

$ 1,912.67 per month $1,599.78 Principal & Interest $102.92 Property Tax $209.97 Homeowner's Insurance
Get your competitive financing options.

Property Details

Property Type: Residential - Single Family
Cooling: Central Air
Garage: 3 car attached
Heating: Central
Lot Size: 0.23 Acres
Roof Type: Shingle
Stories: 1.0
Taxes: $1,235
Year Built: 2025

Amenities

Built-in Features
Cathedral Ceiling(s)
Coffered Ceiling(s)
Dry Bar
High Ceilings
Kitchen/Family Room Combo
Living Room/Dining Room Combo
Open Floorplan
Primary Bedroom Main Floor
Split Bedroom
Tray Ceiling(s)
Vaulted Ceiling(s)
Walk-In Closet(s)
Lighting
Outdoor Shower
Sliding Doors

Feature Descriptions

Appliances: Built-In Oven, Cooktop, Dishwasher, Electric Water Heater, Exhaust Fan, Microwave, Refrigerator
Association Amenities: Recreation Facilities
Body of Water: TRENTON WATERWAY
Community Features: Deed Restrictions, Street Lights
Directions: From Gasparilla Road, turn onto Appleton. Go all the way to the end to St. Paul Dr, turn right. Turn left onto Havana. Sign in yard
Exterior: Stucco
Flood Zone Code: AE
Flooring: Luxury Vinyl
Foundation: Block
Frontage Canal Brackish: 80
Frontage Canal Salt: 80
HOA Y/N: Yes
Home Warranty Y/N: No
Listing Terms: Cash, Conventional, FHA, VA Loan
Lot: In County, Level, Paved
Lot Dimensions: 0.23
Ownership: Fee Simple
Patio/Porch: Enclosed, Screened
Pets Allowed: Yes
Pool: Heated, In Ground, Outside Bath Access, Screen Enclosure
Property Attached Y/N: No
Property Sub-Type: Single Family Residence
Sewer: Septic Tank
Showing Instructions: Supra Lock Box, Go Direct, ShowingTime
Spa: Heated, In Ground
Special Sale Provisions: None
Special View Info: Water
Swimming Pool: Yes
Utilities: BB/HS Internet Available, Electricity Connected, Public, Sewer Available
Vegetation: Trees/Landscaped
Water: Public
Water Access: Canal - Brackish
Water Access Y/N: Yes
Waterfront Features: Canal - Brackish, Bridges - No Fixed Bridges, Sailboat Water, Seawall - Concrete
Water View: Canal
Zoning: RSF3.5

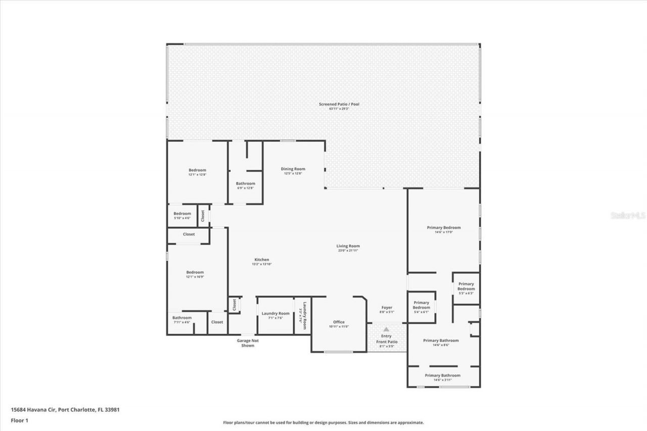
Room Information

Living Room: 23x21
Kitchen: 13x13
Dining Room: 12x12
Primary Bedroom: 14x17
Primary Bathroom: 14x12
Office: 10x11
Bedroom 2: 12x12
Bedroom 3: 12x16
Bathroom 2: 6x12
Laundry: 7x10

Schools

High School: Lemon Bay High
Middle School: L.A. Ainger Middle
Elementary School: Myakka River Elementary

Disclaimer: The accuracy of all information regardless of source, including but not limited to square footage and lot size, is deemed reliable but not guaranteed nor warranted and should be personally verified through personal inspection by and/or with the appropriate professionals.

Location

See details and scored characteristics about this location.

Listing Office: PARADISE EXCLUSIVE INC



Listing data and photos distributed by MLSGRID
Member Participants (and their affiliated licensees, if applicable) shall indicate on their websites that IDX information is provided exclusively for consumers’ personal non-commercial use, that it may not be used for any purpose other than to identify prospective properties consumers may be interested in purchasing, that the data is deemed reliable but is not guaranteed by MLS GRID, and that the use of the MLS GRID Data may be subject to an end user license agreement prescribed by the Member Participant’s applicable MLS if any and as amended from time to time. MLS GRID may, at its discretion, require use of other disclaimers as necessary to protect Member Participant, and/or their MLS from liability.
Based on information submitted to the MLS GRID. All data is obtained from various sources and may not have been verified by broker or MLS GRID. Supplied Open House Information is subject to change without notice. All information should be independently reviewed and verified for accuracy. Properties may or may not be listed by the office/agent presenting the information.


Login to my Baird & Warner account

Pixel